Grundstück Solingen-Dorp Dorp - 150.000€ | Angebot:23780121

Grundstück zu verkaufen in Solingen-Dorp 150.000 € 526 m²

Informationen zur Immobilie:
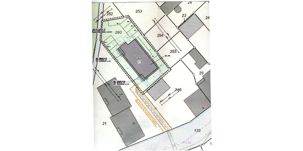
Grundstücksgröße
526,00 m²
Ort
42651 Solingen-Dorp
Objektart
Grundstück
Größe
ca.
150.000 €
Kaufpreis
Beschreibung:
Grundstück zu verkaufen in Solingen-Dorp 150.000 € 526 m² ... mehr erfahren
weitere Grundstücke
social facebook social youtube social instagram social tiktok

Copyright © 2000 - 2026 | 1A Infosysteme GmbH | Content by: 1A-Anzeigenmarkt.de 21.04.2026